Na predaj je 3-izbový byt, TOP lokalita THK – Banská Bystrica.
Náhľad
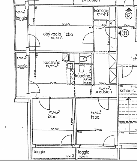
– podlahová plocha bytu 76m2+ 4x loggia
– kumbál, pivnica, 2x výťah
– vyhľadávaná lokalita sídlisko THK
– vynikajúca občianska vybavenosť
Ponúkam Vám na predaj priestranný 3- izbový byt s výmerou 76 m2 a štyrmi loggiami, výbornou dispozíciou na sídlisku Fončorda. Nepotrebné veci schováte do kambalu priamo v byte a ostatné do pivnice na prízemí. Na 3. poschodie sa vyveziete dvoma výťahmi, ale aj po schodoch je to pohodička 🙂 Ulica THK a jej okolie je z hľadiska vybavenosti určite top, školy, škôlky, detské ihriska, lekáreň, potraviny, pizzeria, bowling, tenisové kurty, telocvičňa, plážové kúpalisko sú benefity, ktoré si užijete po celý rok. Orientácia je na dve strany (južná a západná).
Stačí si dohodnúť obhliadku a ostatné už vybehám za vás.
Kontakt: 0907409364 mail: info@matusoravkin.sk
Detaily
-
Obytná plocha:76 m2
-
Izby:3
-
Cena Eur:200000 Euro
-
Rok postavenia:1982
-
Stav:
Materials
- Nový výťah
- Pivnica
- Zateplený bytový dom













